פרויקטים

עמוד פרויקטים
עמוד פרויקטים

ניסיון

מצב הדירה הקיים

הדירה לאחר תכנון

דירת מגורים קלאסית3

המצב הקיים:
דירת 3 חדרים 2 מרפסות

האתגר:
להוסיף עוד 2 חדרים ולשנות מבלי לפגוע בדירה

הפתרון-תכנון מנצח:
הפרדנו את המטבח מהסלון וכך גרמנו להרחבת עוד 4 מטר הפרדנו את המטבח מהסלון וכך גרמנו להרחבת עוד 4 מטר הפרדנו את המטבח מהסלון וכך גרמנו להרחבת עוד 4 מטר הפרדנו את המטבח מהסלון וכך גרמנו להרחבת עוד 4 מטר הפרדנו את המטבח מהסלון וכך גרמנו להרחבת עוד 4 מטר

3 חדרים

תוספת בניה

תוספת בניה

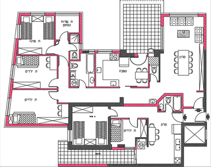
מצב הדירה הקיים

הדירה לאחר תכנון

דירת מגורים קלאסית2

המצב הקיים:
דירת 3 חדרים 2 מרפסות

האתגר:
להוסיף עוד 2 חדרים ולשנות מבלי לפגוע בדירה

הפתרון-תכנון מנצח:
הפרדנו את המטבח מהסלון וכך גרמנו להרחבת עוד 4 מטר הפרדנו את המטבח מהסלון וכך גרמנו להרחבת עוד 4 מטר הפרדנו את המטבח מהסלון וכך גרמנו להרחבת עוד 4 מטר הפרדנו את המטבח מהסלון וכך גרמנו להרחבת עוד 4 מטר הפרדנו את המטבח מהסלון וכך גרמנו להרחבת עוד 4 מטר

3 חדרים

תוספת בניה

תוספת בניה

מצב הדירה הקיים

הדירה לאחר תכנון

דירת מגורים קלאסית1

המצב הקיים:
דירת 3 חדרים 2 מרפסות

האתגר:
להוסיף עוד 2 חדרים ולשנות מבלי לפגוע בדירה

הפתרון-תכנון מנצח:
הפרדנו את המטבח מהסלון וכך גרמנו להרחבת עוד 4 מטר הפרדנו את המטבח מהסלון וכך גרמנו להרחבת עוד 4 מטר הפרדנו את המטבח מהסלון וכך גרמנו להרחבת עוד 4 מטר הפרדנו את המטבח מהסלון וכך גרמנו להרחבת עוד 4 מטר הפרדנו את המטבח מהסלון וכך גרמנו להרחבת עוד 4 מטר

3 חדרים

תוספת בניה

תוספת בניה

מצב הדירה הקיים

הדירה לאחר תכנון

דירת מגורים קלאסית4

המצב הקיים:
דירת 3 חדרים 2 מרפסות

האתגר:
להוסיף עוד 2 חדרים ולשנות מבלי לפגוע בדירה

הפתרון-תכנון מנצח:
הפרדנו את המטבח מהסלון וכך גרמנו להרחבת עוד 4 מטר הפרדנו את המטבח מהסלון וכך גרמנו להרחבת עוד 4 מטר הפרדנו את המטבח מהסלון וכך גרמנו להרחבת עוד 4 מטר הפרדנו את המטבח מהסלון וכך גרמנו להרחבת עוד 4 מטר הפרדנו את המטבח מהסלון וכך גרמנו להרחבת עוד 4 מטר

3 חדרים

תוספת בניה

תוספת בניה

מצב הדירה הקיים

הדירה לאחר תכנון